Befestigungswinkel TE 640 3D

24.11.2017

Nachdem aus dem Markt immer wieder die Anforderung laut wurde, TECTUS auch für stärkere Aufdoppelungen als 8 mm zu konzipieren, sind nun zwei neue Artikel verfügbar, welche dieser Forderung nachkommen. Individuell wurden diese auch in der Vergangenheit fallweise eingesetzt. Die positiven Ergebnisse aus diesen Einsätzen und die laufend steigenden Bedarfszahlen haben SIMONSWERK nun bewogen, diese Produkte ins Standardprogramm aufzunehmen.
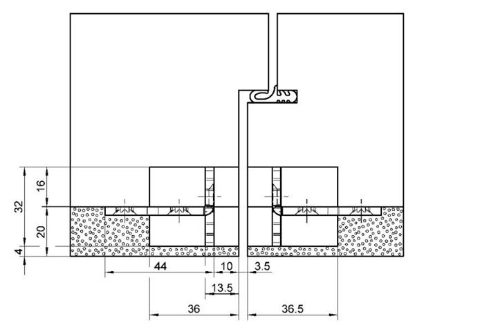
Den Befestigungswinkel TE 640 3D wird in den Ausführungen „-16“ und „-20“ angeboten. Mit diesen Unterkonstruktionen können wir Aufdoppelungen bis zu 16 bzw. 20 mm realisiert werden. Dabei wird vorausgesetzt, dass die Aufdoppelung bearbeitet bzw. ausgenommen werden kann. Der Befestigungswinkel wird auf den Rahmen und die Tür aufgeschraubt, so dass die Lage des Bandes entsprechend weiter nach vorn aus der Ansichtsfläche herausgeschoben wird. Anschliessend wird die Aufdoppelung übergesetzt. Einsetzbar sind diese Befestigungswinkel unter anderem auch für nach aussen aufgehende Holz-/Aluminiumsysteme.